INGENIEURBÜRO H. KUNKEL GmbH + Co KG
impressum/disclaimer
21.04.2011
Engineering
Arbeitsgebiete
KW-Engineering
Berechnungen
CAD-Planung
Projekte
CAE-Beratung
Inbetriebnahme
Modellbau
Kooperation
Referenzen
Beispiele aus der Praxis:
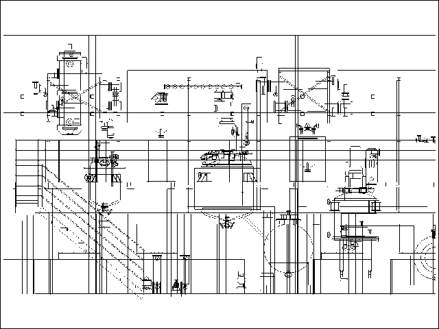
Teilansicht einer Aufarbeitungsanlage
Detailansicht Aufarbeitungsanlage
Chemie-Anlage
Gesamt- und Teilansichten Tankfarm
3D-Modell einer Aktivkohlereaktivierungsanlage
Teilansicht einer Anlage zur Produkt-Strippung
Detailansichten eines E-Filters für ein Service-Handbuch
Teilansichten aus Animation PLANETENRAD 8-fach
zurück zur CAD-Planung